Proposed SDA Accommodation Apartments in Mentone For Lease
101-103 Mentone Parade, MENTONE VIC 3194
• Located in a high demand area for single participant SDA accommodation apartment with high physical support amenity; only 32% of dwellings are new build and refurbished
• Mentone Shopping Village is located in the central with anchor tenants Coles, Good Health Pharmacy, Chemist Warehouse, Australia Post, local cafes and restaurants
• Architecturally brilliant, four level SDA apartment with a basement car park to be constructed, located in a top-of-the-court position
• Close proximity to medical centres and specialists
• Plans propose basement level with 9 car parks, and other ancillary area such as a commercial kitchen with waste management area
• Plan proposed with commercial use on ground level; coffee shop and gym, with site office and consulting suites
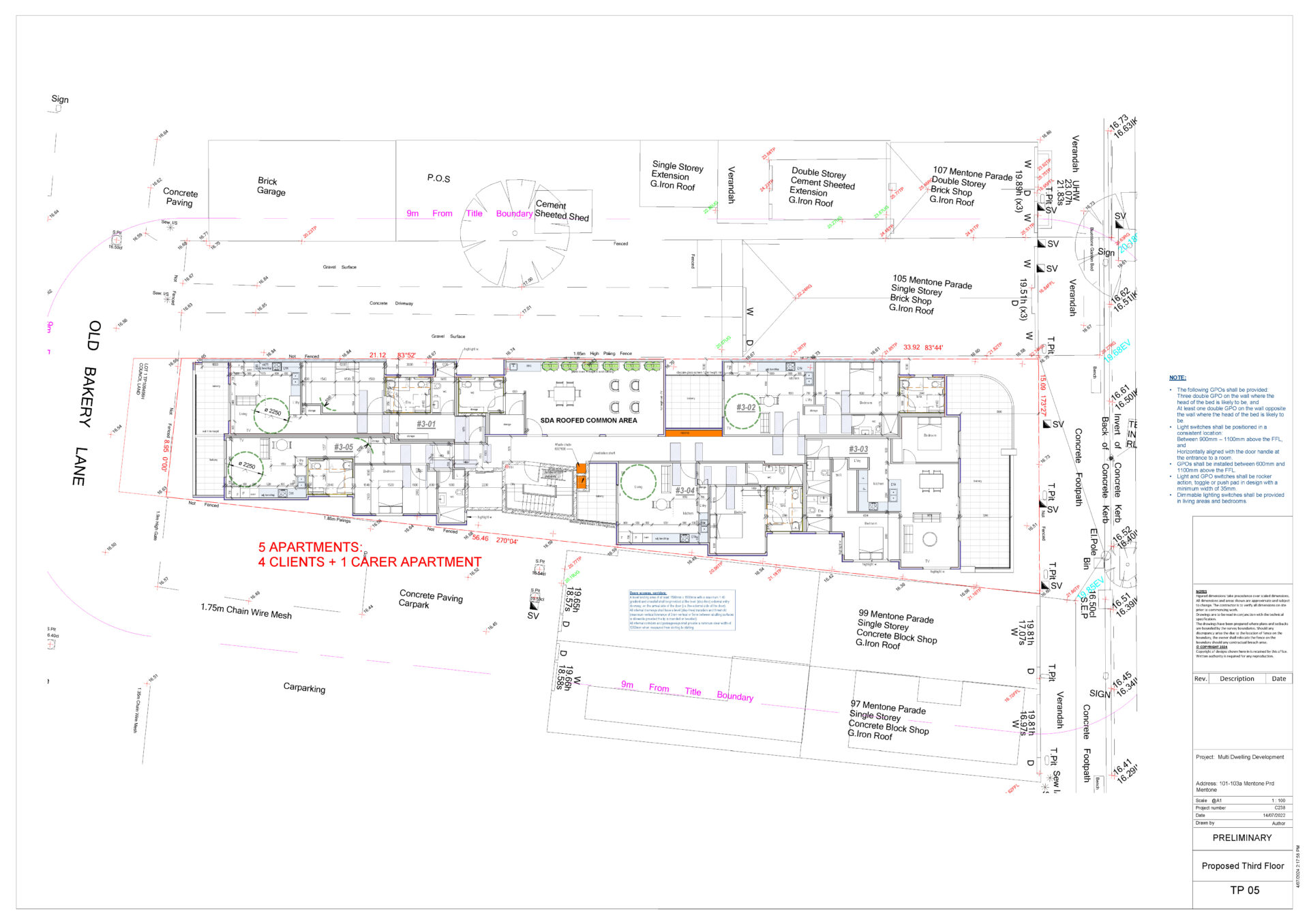
• Residents area evenly spread into three levels. Level 1 with 6 apartments for 6 participants; Level 2 with 6 apartments for 5 participants and 1 double carer apartment; Level 3 with 5 apartments for 4 participants and 1 double carer apartment
• A site that benefits from proximity to two major arterials, providing fast links from the outer
south-eastern suburbs to Melbourne CBD
• Opportunity to secure a lucrative lease in high demand area
Offers being reviewed
Contact: Jonathan Lan 0422 358 259 jonathan@aslre.com.au
Images are for indicative purposes
ASL Real Estate and/or their agents, for themselves and for the vendor/landlord of these properties for whom they act give notice that (i) All information given in relation to this property, whether contained in this document or given orally, is given without responsibility, (ii) All information given in relation to these properties is current up until the creation and distribution of this document, (iii) Intending purchasers/tenants should satisfy themselves as to the accuracy or truth of all information given by their own inspections, searches, inquiries, advices or as is otherwise necessary. (iv) No person in the employment of ASL Real Estate has any authority to make or give any representation or warranty.
By sending an enquiry to ASL Real Estate you agree to be marketed to in the future for similar properties through email alerts/sms messages. This is at NO COST to you and at any time you wish to cancel your subscription please simply reply STOP.
http://www.consumer.vic.gov.au/duediligencechecklist
Property Features
- NDIS
- Land is 2,459 m²
- Floor Area is 399.30 m²
Inspection Times
No inspections are scheduled at this time.